Trusted Local News

VENTNOR

Ventnor to hold site plan review meeting for Ventnor Professional Campus redevelopment

  • Community

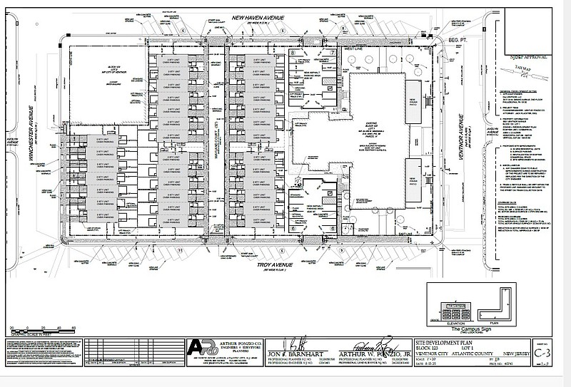
VENTNOR – The Planning Board will hold a meeting 6:30 p.m. Tuesday, Nov. 18 to review the site plan for the Ventnor Professional Campus, 6601 Ventnor Ave., which once served as the city’s public school.

DAJ Ventnor, LLC is seeking preliminary and final site plan and final subdivision plan approval to subdivide the block between Troy and New Haven avenues into 33 residential lots with one commercial lot with improvements to revitalize the property consistent with the redevelopment plan. DAJ wants to redevelop the front section of the building and add new commercial tenants.

The 2.3-acre property spans nearly the entire block except for the parcel where Firehouse No. 1 is located.

The board has held several meetings on the proposed plan. Numerous residents spoke during the public comment period at prior meeting saying they were not aware of the plans being considered and wanted more time to review them. They expressed concerns about parking in the neighborhood.

The rear of the old brick schoolhouse will be demolished to make way for cottage-styled townhouses separated by a one-way street that goes from New Haven to Troy Avenue. An additional row of townhouses will be located along the rear of the property facing Winchester Avenue. Current regulations would permit as many as 46 units. The site plan was revised to reduce density to 34, three-bedroom units with three off-street parking spaces and backyards. Brick accents will be incorporated into the façade to reflect the historic nature of the original schoolhouse building.



author

Nanette LoBiondo Galloway

Award winning journalist covering news, events and the people of Atlantic County for more than 25 years. Contact [email protected]


STEWARTVILLE

JERSEY SHORE WEEKEND

LATEST NEWS

Events

April

S M T W T F S
29 30 31 1 2 3 4
5 6 7 8 9 10 11
12 13 14 15 16 17 18
19 20 21 22 23 24 25
26 27 28 29 30 1 2

To Submit an Event Sign in first

Today's Events

No calendar events have been scheduled for today.