Trusted Local News

VENTNOR

Planners approve Ventnor Professional Campus development

  • Community

VENTNOR – After numerous meetings that garnered comments from the public, the Planning Board Nov. 18 approved a local developer’s plan to build townhouses at the rear of the old Ventnor Avenue School.

After hearing some objections from the public at prior meetings, property owner David Waxman of DAJ Ventnor, LLC, a longtime part-time city resident who has experience redeveloping historic properties, instructed his professional team to revise the plan one more time to create more green space.

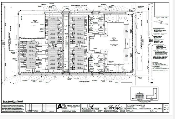
Following an hour-long public hearing, the board unanimously approved preliminary and final major subdivision and final site plan approvals for DAJ to build 33 townhouses, each with three off-street parking spaces and backyards. 

      

The plan required no variances and complies with the Redevelopment Plan created for the 2.3-acre site more than three years ago. The property spans nearly the entire block except for the parcel where Firehouse No. 1 is located on the corner of Troy and Winchester avenues.

The front portion of the old brick schoolhouse will be maintained and improved to accommodate new commercial tenants, including eateries. The development will be subject to all county, state and federal approvals, including a CAFRA permit.

Waxman said he plans to have the project completed within two years.

Changes since the last meeting included reducing density from 34 units to 33 units, moving two rows of townhouses to be built along a new private street closer together, which will increase side setbacks and enhance open space at the ends of the buildings on Troy and New Haven avenues. Also, the architectural details on the end units were redesigned to include open decks and additional windows to make it more attractive for the surrounding neighborhood.

    Ventnor Professional Campus Redevelopment Plan rendering.
 
 

According to testimony provided by the DAJ professional team, a traffic engineer indicated there would be a negligible impact on traffic in the neighborhood. Board member Joe Iannuzzelli, who is a member of the Ventnor City Fire Department, said “it remains to be seen” if the development would have an impact on fire department operations.

The firehouse was built in 1915 and “will continue to serve the city and evolve,” board Chairman Jay Cooke assured residents.

Former Mayor Tim Kreisher questioned if the board conducted a cost analysis for the developer’s investment, which will produce substantial profits; however, the developer’s profit margin is not part of the board’s purview. He also questioned if adding new restaurants in the commercial portion of the property along Ventnor Avenue would have a negative impact on other nearby restaurants.

“You’re the first person to raise that concern,” Commissioner Lance Landgraf, a member of the Planning Board said. “Current zoning includes the use as restaurants.”

Most members of the public who spoke had parking and density concerns.

In response to a resident who questioned stormwater runoff from the property, Landgraf said the developer would increase the size of water and sewer mains, which flow into a 32-inch line along the rear of the property at Winchester Avenue.

“Winchester Avenue has plenty of volume,” Landgraf said.

Mayor Tim Kriebel, who is also a member of the board, said the city is amicable to discussing the idea of issuing parking permits for residents in the neighborhood, like the city has in the North Beach area.

“Over the years, the metrics have changed and need fine tuning,” he said. “But that discussion would be separate from this application.”

The new development adds upscale design to the neighborhood and complies with FEMA height elevations required to address flooding during extreme weather events.

In their votes to approve the project, board members agreed that the project will greatly improve a property that has lain fallow for years.

“They have complied with everything we have asked for and more,” Landgraf said. “To me, we will never find a perfect project. I understand folks are passionate about the site…This complies with the Redevelopment Plan for the iconic structure. To save a structure like that has to have some give-back on our side.”

Iannuzzelli said parking will always be a problem on the barrier island, which has become more of a resort town in recent years. 

“But this will be a nice addition to the neighborhood. Things change, things evolve and I believe this is evolving for the better,” he said.

Cooke said the project preserves the past but adds a modern element to the neighborhood. He said the project achieves the goal of extending the tourism season and offers visitors and residents the lifestyle choices they prefer.

Kriebel called it a “landmark” building that has an “emotional connection” for the community.

“It has been underutilized for decades. It is increasing the pervious ground cover which helps with flooding we all experience,” he said. “The applicant has experience with adaptive reuse of old architecturally significant buildings…that gives me confidence that this building will be respected…and we can all enjoy it again.”

    

Copyright Fideri News Network 2025


author

Nanette LoBiondo Galloway

Award winning journalist covering news, events and the people of Atlantic County for more than 25 years. Contact [email protected]


STEWARTVILLE

JERSEY SHORE WEEKEND

LATEST NEWS

Events

April

S M T W T F S
29 30 31 1 2 3 4
5 6 7 8 9 10 11
12 13 14 15 16 17 18
19 20 21 22 23 24 25
26 27 28 29 30 1 2

To Submit an Event Sign in first

Today's Events

No calendar events have been scheduled for today.